Sさんの家|府中
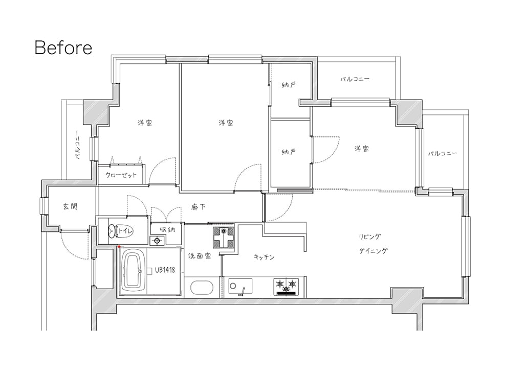
築26年、73㎡のマンションのリノベーションです。ライフスタイルの変化と住宅設備が古くなったことをきっかけに、これまで暮らしてきた中での様々な不満を解消すべく、新たな住まいづくりがスタートしました。
明るいワンルームのような住まいにしたい、という最初の大きなリクエストをベースに、プランニングは全体がつながったダイナミックなものになりました。暮らしがスタートし、家具や植物が配置された住まいは、三面から光と風が抜けていき、Sさんらしい雰囲気が伝わってきてとても居心地が良いです。
玄関は下足入れを置かずにすっきりとさせました。天井にはアルダーの羽目板、壁はシリカライムの左官仕上げで、包まれたような雰囲気になっています。玄関は小さなスペースですが、家に帰ってきた時の気持ちを受け止める場所だから、素材やしつらえなど丁寧に選んでいきます。
玄関から入ると、すぐにキッチン、リビング、ダイニングと連続した大きな空間につながります。アイランドキッチンは視線や動線を遮ることなく、開放的な雰囲気になります。光も風も通す縦格子は、ツガ材を丸い棒状に加工して造作したもので、サニタリーと浴室を包んでいます。床はカバザクラの無垢フローリング、家具もカバザクラの板目をセレクトしてより明るい印象になりました。
タイルの陰影が印象的なシンプルな洗面スペースです。鏡部分を収納にせず曲線でデザインすることで軽やかな感じになりました。洗面の左の脱衣スペースは、カーテンで目隠しできるようにしています。
クローゼットと下足入れなどの収納でキッチンやリビングと寝室スペースの間に境界線を作っています。回遊や抜け道を意識的に作り、住まい全体の空気に偏りができないようにし、動線のストレスも解消しています。風景に奥行きが生まれて、いつも住まい全体を感じることができます。
| 所在地 | 東京都府中市 |
|---|---|
| 建物 | マンション(1998年竣工) |
| 計画 | リノベーション |
| 面積 | 73㎡ |
| 設計期間 | 5ヶ月 |
|---|---|
| 工事期間 | 4ヶ月 |
| 世帯構成 | 1人 |






























